创业·齐美大厦

诚信创业 责任地产

五星级办公 新财富领地


匠心打造 品质保障


高效商务氛围 营造舒心环境



项目选择具有国家物业管理一级资质的淄博万佳物业公司,为业主提供标准化、专业化、规范化的物业服务。
创新办公格局 空间功能多变
企业办公


满足各类企业的日常办公需求
商务洽谈


企业会客、接待的理想洽谈地
商务会馆


企业人才公寓及会务服务
艺术工作室

文创、设计、艺术、教育培训工作室
品茶聊天室

朋友间喝茶、聚会、聊天场地
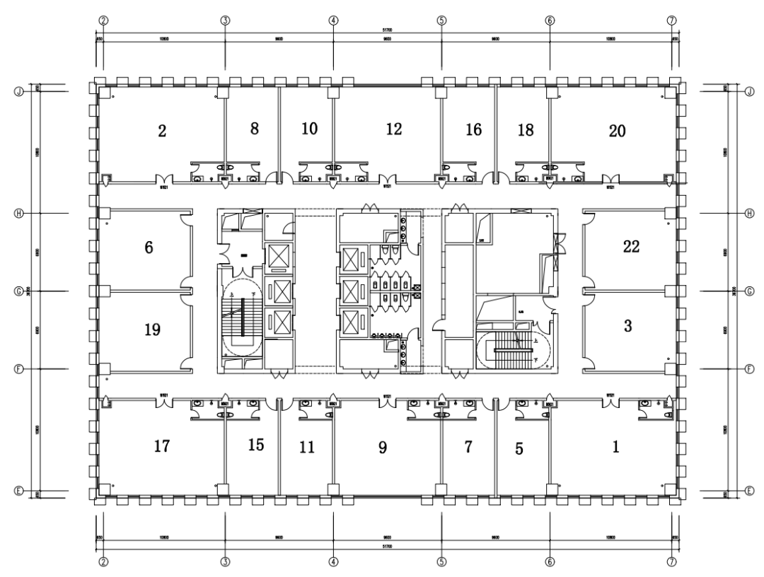
标准层平面图


主办单位:淄博市公共资源交易协会
电子邮箱:zbsggzyjyxh@163.com 联系电话:0533-2320018 地点:山东省淄博市高新区柳泉路125号
淄博市公共资源交易协会版权所有 备案号:鲁ICP备19024933号-1
技术支持:淄博齐泰电子商务有限公司